Sundsvalls kommun står inför flera satsningar på nya idrottshallar. På uppdrag av kommunen har vi utrett och utformat en fullstor ny idrottshall i centrala Sundsvall där skola och föreningsliv kan mötas.
Uppdrag
Idrottshall för skola och föreningsliv
Plats
Centrala Sundsvall
Beställare
Sundsvalls kommun, Drakfastigheter
Kontaktperson
Sanna Hederus, Solmaz Beik
Status
Pågående bygge 2024
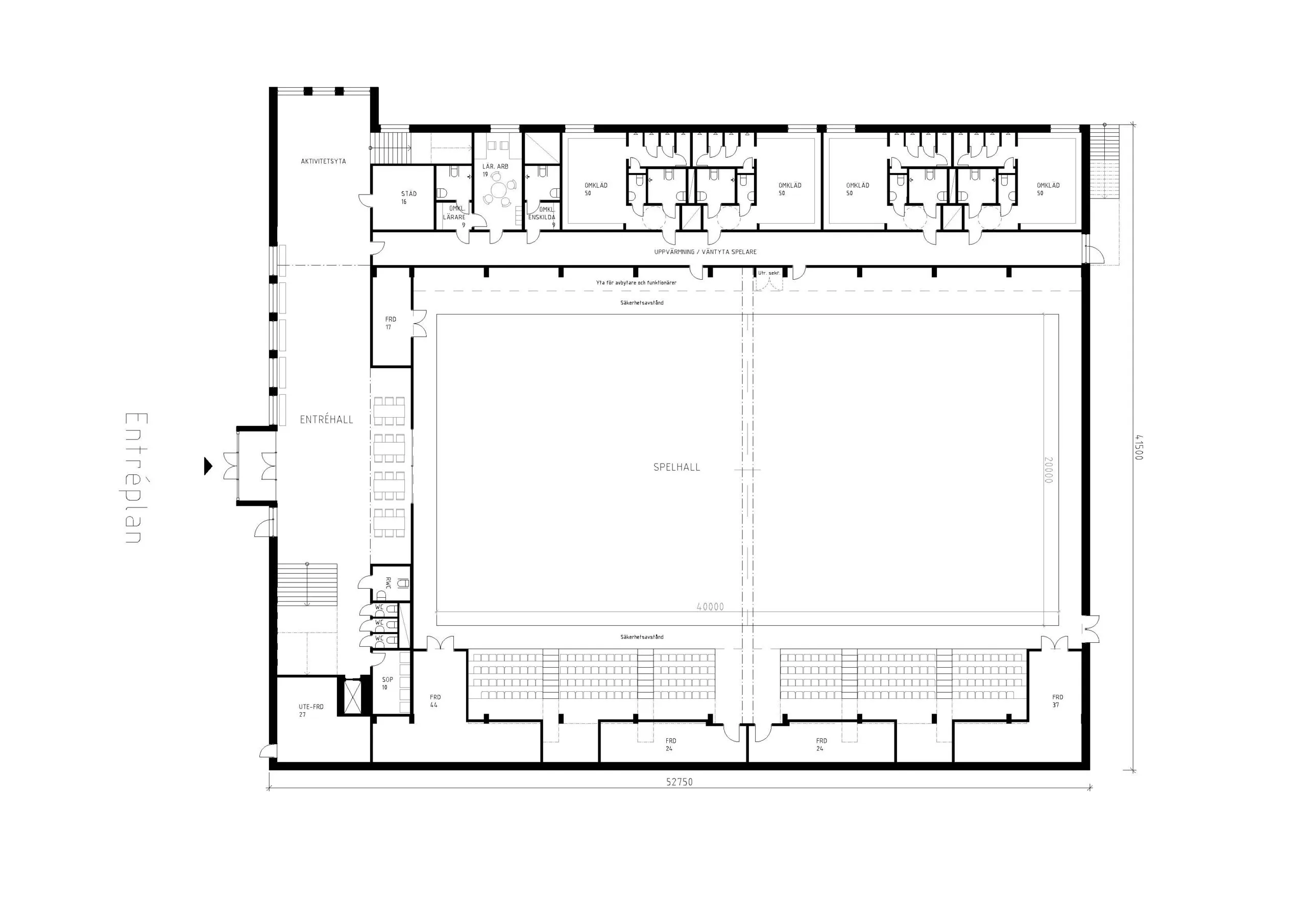
Centrala Sundsvall utgörs i stora delar av årsringar av kulturhistorisk värdefulla miljöer. Uppgiften har varit att utforma en idrottshall som har full funktionalitet och som utgår ifrån platsens, stadsvävens och den omkringliggande bebyggelsens förutsättningar. Idrottshallen ska möta behoven hos såväl idrottande som publik, samtidigt som den med sin centrala placering kan erbjuda staden i allmänhet en ny publik mötesplats. Kod har hjälpt kommunen från tidiga tomtanalyser till utredningsskisser och gestaltat förslag.
Idrottshallen är en samtida träkusin till omkringliggande skolbyggnader. Förslaget är en träbyggnad med träfasad där materialet och stommens rytm återkommer i fasadgestaltningen. Funktioner avspeglas i byggnadens olika volymer som omfamnar vandra och omgärdar den stora spelhallen.
I såväl volymhantering som fasadgestaltning talar förslaget till skolans befintliga modernistiska byggnader, men är en tydligt egen gestalt av sin samtid.










